Capsule House
All are capsule houses are transportable. They can be delivered to any location and ready to be moved in and customizable to meet any requirements, adapting to various use.
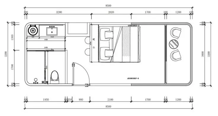
Capsule House Single
Compact Design, Endless Possibilities
This is the ultimate solution for families and individuals looking for an affordable, sustainable, and versatile living option. Designed with high-quality materials, this modern tiny house is perfect for a variety of applications, whether it’s a private retreat, additional living space, or even a rental property.
Functional Layout
- Bedroom: Spacious enough for a single-sized bed.
- Bathroom: Fully equipped with a shower, toilet, and sink.
- Living Area: Bright and inviting, thanks to large sliding windows that maximize natural light.
- Balcony: A compact outdoor extension, perfect for relaxing, enjoying scenic views, or creating a cozy spot for morning coffee or evening conversations.
Features and Benefits
- Durable Construction:Made with waterproof, termite-resistant, and mold-proof materials to ensure longevity and minimal maintenance.
- Excellent Insulation:Equipped with the insulation material has a high resistance to heat transfer, effectively slowing down heat flow and providing exceptional thermal performance for energy savings and year-round comfort.
- Customizable Options:Choose from a variety of layouts, interior finishes, and amenities to match your needs and preferences.
Eco-Friendly and Energy Efficient
- Constructed with energy-efficient optional solar panels.
- Designed for minimal environmental impact, helping you reduce utility costs while living sustainably.
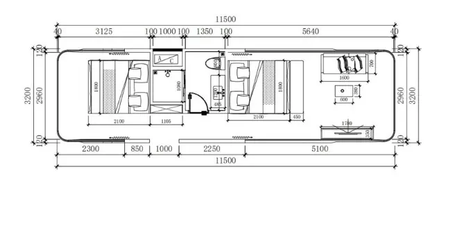
Capsule House Family
Modern Comfort for Families, Guests, or Rentals
This is a beautifully designed, space-efficient modular home that offers 2 bedrooms and 1 full bathroom—perfect for families, short-term rental investments, or as a multifunctional backyard unit. With a compact footprint of just 600 sqft (approx. 39’4″ x 16’5″), this home blends comfort, simplicity, and smart spatial planning with a sleek, modern exterior.
Functional Layout
- Two Bedrooms: A master bedroom accommodating a queen-sized bed. An additional bedroom with twin beds for children, guests, or roommates.
- Bathroom: Features a shower, toilet, and sink for convenience.
- Living Room: Spacious and welcoming, perfect for relaxing or entertaining guests.
Kitchen and Dining Area: Fully equipped with a stove, sink, and dining space for up to four people. - Two Balcony areas: A compact outdoor extension, perfect for relaxing, enjoying scenic views, or creating a cozy spot for morning coffee or evening conversations.
Features and Benefits
- Spacious Living: The two-bedroom design maximizes living space, providing enough room for families or groups.
- Customizable Options: Choose from a variety of exterior and interior wall finishes, as well as flooring colors, to match your preferences.
- Sustainability: Built with eco-friendly materials and optional solar panel systems to reduce energy consumption.
- Durable and Low-Maintenance: Designed to withstand harsh weather conditions and ensure long-term use with minimal upkeep.
Materials and Durability
- Waterproof, mold-resistant, and termite-proof construction materials.
- High-quality insulation, ensuring energy efficiency and year-round comfort.
